CONTACT US
|
HOME
Company
주택 · 펜션
공장 · 일반
완공사례
Community
LOG IN
JOIN
인사말
회사개요
Business
People
오시는 길
주택
펜션
호텔리조트
공장
상업시설
기타시설
C/M
주거
업무상업
플랜트
기타
공지사항
Q & A
주택
주택
펜션
호텔리조트
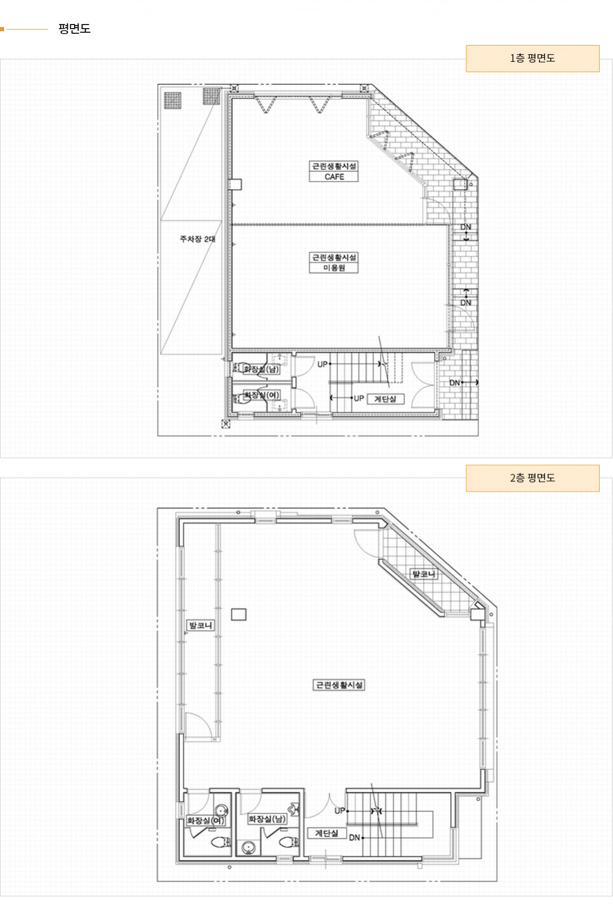
완도 군내리 상가주택
이전글
다음글
목록
이전글
다음글
목록